RIJEKA, ŠKURINJE - 3-izbový radový rodinný dom RIJEKA, ŠKURINJE - 3-izbový radový rodinný dom

260.000 €

Vybavenie
  • 87 m2
  • 4
  • 2
Lokalita

ŠKURINJE , RIJEKA

Popis
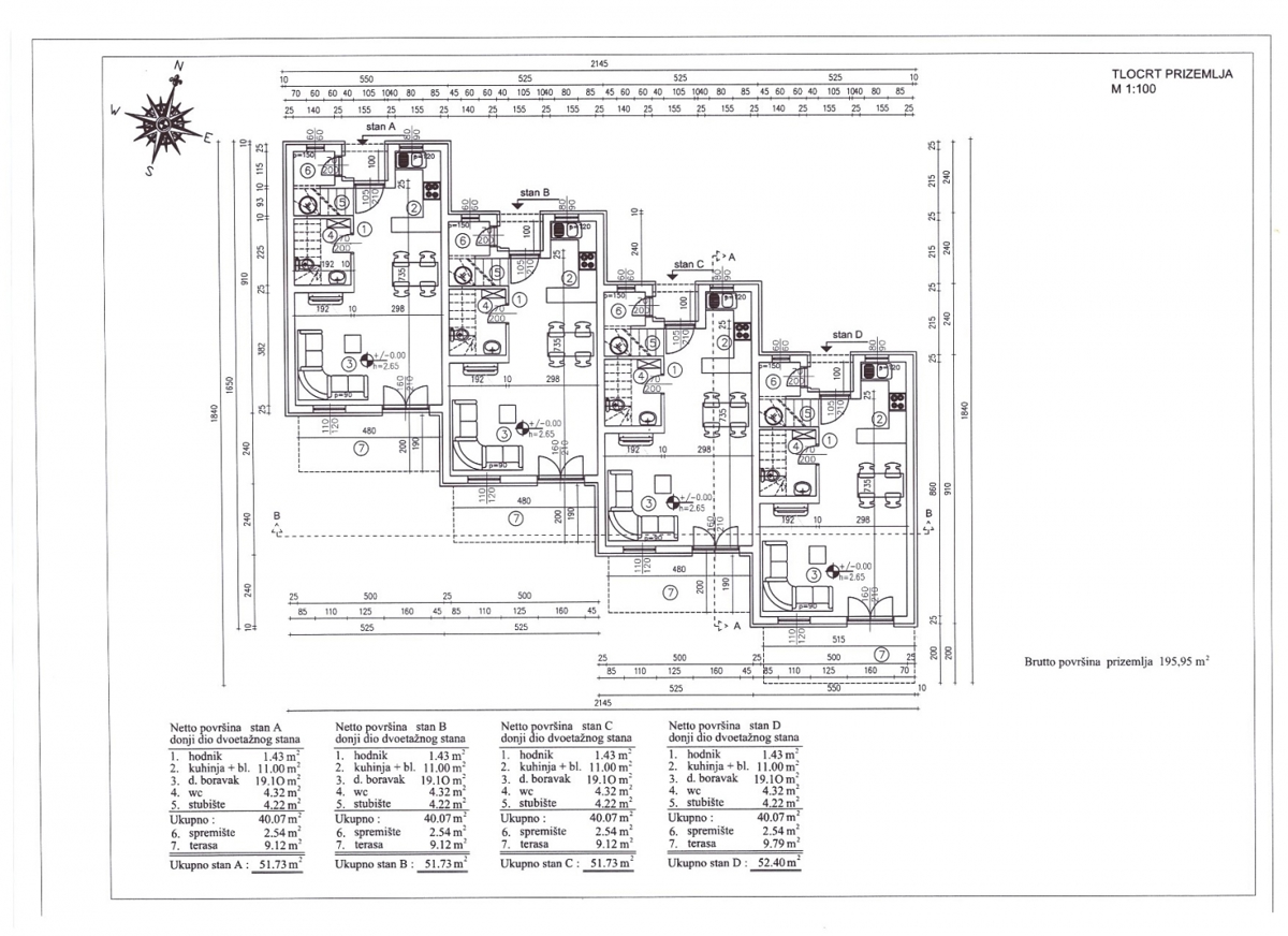
Na Škurinjama, u dijelu Tibljaši, projekt dvoetažnih kuća u nizu smješten je izvan glavnih prometnica, u zoni s viac zelenila i manjim prometom. Do centra Rijeke potrebno je nekoliko minuta vožnje. Auto je praktičan za svakodnevne obaveze.

Svaka jedinica ima oko 90 m2 i organizirana je kroz dvije etaže. Prizemlje čini dnevni priestor povezan s kuhinjom i blagovaonicom, uz gostinjski WC a izlaz na terase. Taj dio se koristi kroz veći dio dana. Izlaz na okućnicu omogućuje boravak vani bez odlaska iz kuće. U prizemlju se nalazi i vanjsko spremište od 2,54 m2.

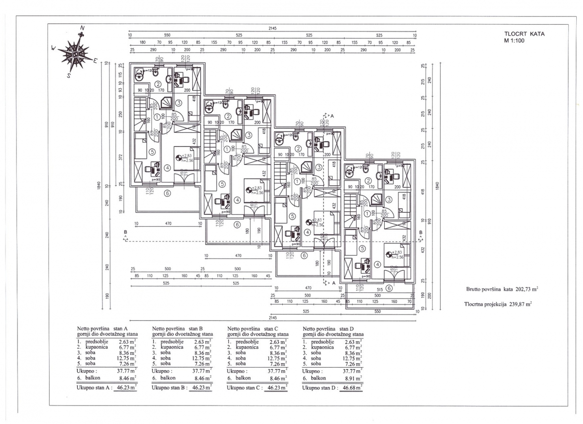
Na katu su tri spavaće sobe i kupaonica. Takav raspored znači da obitelj može odvojiti dnevni i noćni dio bez preklapanja, a jedna soba može se koristiti i kao radna ili gostinjska. Glavna spavaća soba ima izlaz na prostrani balkon s djelomičnim pogledom na more.

Kuće se prodaju u visokoj roh-bau fazi, s ugrađenim podnim grijanjem putem dizalice topline a uređenim okolišem. Dokončovacie práce zahŕňajú montáž podláh, sanity a finálne vymaľovanie, čo znamená ďalšiu investíciu pred nasťahovaním, ale aj možnosť prispôsobenia interiéru podľa vlastného želania.

Každá jednotka má dve parkovacie miesta. Plánované dokončenie výstavby je jeseň 2026.

Vážení klienti, provízia agentúry je účtovaná v súlade so Všeobecnými obchodnými podmienkami:
www.myadriatic.hr/opci-uvjeti-poslovanja
Prehľad
  • Typ nehnuteľnosti: Dom
  • Výmera: 87 m2
  • Výmera pozemku: 70 m2
  • Izby: 4 izby
  • Kúpeľne: 2 izby
  • Od mora: / m
  • Parkovacie miesto: /
  • Garáž: /
  • Poschodie: /
  • Výhľad z nehnuteľnosti: na more
  • Energetická trieda: /
  • Počet zobrazení: /
Detaily nehnuteľnosti
Typ nehnuteľnosti
Dom
Výmera
87 m2
Výmera pozemku
70 m2
Izby
4 izby
Kúpeľne
2 izby
Od mora
/ m
Parkovacie miesto
/
Garáž
/
Poschodie
/
Výhľad z nehnuteľnosti
na more
Energetická trieda
/
Počet zobrazení
/
Zobrazenie na mape
  • Mestská časť
    RIJEKA
  • Mesto
    ŠKURINJE
  • Región
    PRIMORSKO-GORANSKA
Informácie o kancelárii
My Adriatic Nekretnine
Kontaktovať predajcu
+
=